咨询热线:400-158-8685
首页
HOME
关于我们
ABOUT US
公司简介
品牌文化
公司环境
新闻中心
NEWS
家装活动
新闻资讯
宜居贴士
公司动态
工程项目
PROJECT
在施项目
施工现场
设计团队
TEAM
设计团队
设计理念
优秀作品
设计案例
CASE
个性家装
别墅豪宅
装修流程
PROCEDURE
装修流程
装修工艺
联系我们
CONTACT US
联系方式
设计预约
在线留言
新闻中心
NEWS
家装活动
新闻资讯
宜居贴士
公司动态
位置:
首页
> 新闻中心 > 新闻资讯
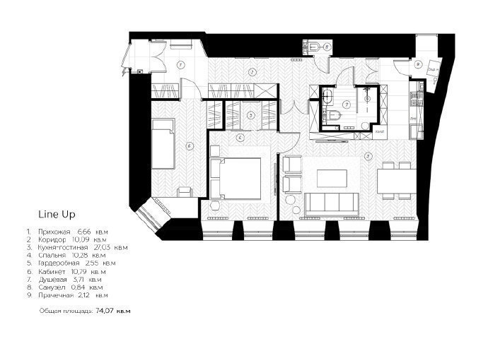
74㎡年轻夫妇的家,个性时尚
发表时间:
2020-01-15
阅读次数: 字体:【
大
中
小
】
上一篇:
130㎡北欧风,柔和素净
下一篇:
150㎡现代小资格调~ 原木的自然以及北欧的清新