设计案例CASE

个性家装 别墅豪宅
位置:首页 > 设计案例 > 别墅豪宅
【叠墅】璞樾和山中叠174
发表时间:2020-07-31     阅读次数:

公司 · 简介

公司简介

壹家装饰设计

南京本土企业,坐落栖霞,在宁14年。有专业的设计团队与施工团队。


成员管理

以设计小组主导住宅、别墅、商业空间等空间个性化的全案设计与施工。


服务流程

以“多对一”模式提供主材、智能设备、家具、配饰的托管式服务。


项目· 概况

南京新城万顺房地产

栖霞区仙林大道与经天路交叉口

景观居所

叠墅

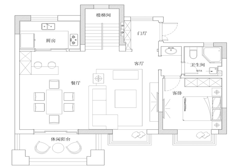
户型 · 分析

户型 · 介绍

本户型为新城璞樾和山中叠174户型

户型 · 优点

采光优越各个区域全明

南北通透

空间合理

赠送面积

户型 · 不足

厨房空间较小

主卧卫生间无窗

本案户型结构、空间分配较为合理,南北通透。在功能区要求较高,应合理分配空间。

分层平面 · 布置解析

一层原始测量图

二层原始测量图

一层平面设计方案(1)

一层平面设计方案(2)

二层平面设计方案(1)

二层平面设计方案(2)

上一篇:没有了
下一篇:【别墅】大吉公元